back-button← späť

Apartmány Nalia Resort - Torrevieja, Španielsko

Predaj, 2 izbový byt, Novostavba

Cena: 299.900

74.32 m2

Údaje nehnuteľnosti

ID nehnuteľnosti: 2297
Druh ponuky: Predaj
Druh nehnuteľnosti: 2 izbový byt
Stav nehnuteľnosti: Novostavba
Úžitková plocha: 74.32m2
Vlastníctvo: Osobné vlastníctvo

Popis nehnuteľnosti

Realitná kancelária Leaders & Partners Vám ponúka na predaj luxusné apartmány v Nalia Resort v meste Torrevieja v Španielsku. Torrevieja je z turistických miest číslo jedna na pobreží Costa Blanca pre svoje pláže a prírodné parky. Rezort Nalia sa nachádza v blízkosti niektorých z najlepších pláží na pobreží Costa Blanca a prírodného parku Laguna Rosa de Torrevieja. Ponúka tiež panoramatický výhľad na Stredozemné more.

Torrevieja je veľmi rozvinuté mesto a rezort Nalia je obklopený všetkými službami: nemocnice, školy, nákupné zóny, voľný čas, reštaurácie a vlakové spojenie.

  • Letisko: 40 min.
  • Golf: 5 min.
  • Pláž: 5 min.
  • Pink Lagoon: 5 min.
  • Nemocnica: 6 min.
  • Alicante: 40 min.
  • Murcia: 50 min

Samozrejme, je tiež blízko k ďalším turistickým mestám v provincii Alicante, ako sú: San Juan de Alicante, Campello, Denia, Orihuela Costa, Calpe, Moraira a medzinárodné letisko Alicante!

Rezort ponúka 2 typy luxusných apartmánov:

Apartmány na prízemí

  • celková rozloha 131 m2
  • úžitková plocha 74,32 m2
  • obývačka s kuchyňou
  • 2 spálne
  • 2 kúpeľne
  • 2 terasy - 25,35 m2 a 31,40 m2

Virtuálna prehliadkahttps://my.matterport.com/show/?m=PnSZHNyhgTJ

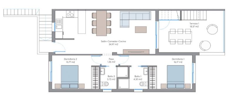
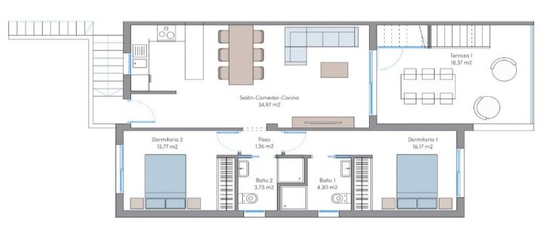
Apartmány na 1. poschodí

  • celková rozloha 178,51 m2
  • úžitková plocha 74,32 m2
  • obývačka s kuchyňou
  • 2 spálne
  • 2 kúpeľne
  • 2 terasy - 18,37 m2 a strešná terasa (solárium) 85,82 m2

Virtuálna prehliadka - https://my.matterport.com/show/?m=bkrCUDpXrYY

V rezorte sú 3 bazény s vírivkou, fitness centrum, kurty na paddle tenis, detský kútik, minigolf a množstvo zelených plôch.

V ponuke posledné 2 apartmány - cena 299 900 €

Mapa

Napíšte nám

Našli ste nehnuteľnosť pri mori, ktorá sa Vám páči. Chcete investovať, alebo máte len otázky ohľadne apartmánov?

Kliknutím na tlačidlo ODOSLAŤ súhlasíte so spracovaním Vami zadaných údajov za účelom zodpovedania otázky či podnetu adresátom správy, ktorým je spoločnosť Leaders & Partners, s.r.o.. Bližšie informácie o spracovaní a ochrane osobných údajov nájdete v sekcii "GDPR - Spracovanie osobných údajov".

Správu sa nepodarilo odoslať
Správa úspešne odoslaná